Advertisement

Standart Jarak Cakar Ayam Rumah - Standar Ukuran Cakar Ayam Untuk Rumah 2 Lantai - Content : Standart jarak cakar ayam rumah :

Standart Jarak Cakar Ayam Rumah - Standar Ukuran Cakar Ayam Untuk Rumah 2 Lantai - Content : Standart jarak cakar ayam rumah :. Suntik pondasi cakar ayam renovasi rumah kontrakan 1 lantai menjadi 2 lantai. Dalam pembuatan cakar ayam, standartnya menggunakan bahan besi beton padat yang. Pondasi cakar ayam merupakan solusi tepat yang harus kita siapkan ketika kita memilih untuk membangun rumah yang mempunyai lebih dari dua lantai, hal ini sudah menjadi kebiasaan berdasarkan perhitungan beban yang dilakukan oleh konsultan teknik sipil. Pondasi rumah 2 lantai cakar ayam sakti desain. 1 buah cakar ayamnya :

Terima kasih telah mengunjungi blog sekitar rumah 2019. Kedalaman pondasi cakar ayam umumnya 1 meter, namun kedalaman dapat bervariasi tergantung tingkat. Dari rumah, ayah berangkat pada pukul 12.30 dan sampai dirumah paman pada pukul 13.00. Cakar itu yang membuat pelat lebih kuat dan mampu menahan bobot dan penurunan yang tidak sama. Proses pemasangan kontruksi cakar ayam rumit.

Terbaik Ukuran Cakar Ayam Rumah 2 Lantai Besi Cor - Besi Cor
Terbaik Ukuran Cakar Ayam Rumah 2 Lantai Besi Cor - Besi Cor from 3.bp.blogspot.com
Daftar harga besi cakar ayam. Besarnya rumah berapa x berapa m gan. Suntik pondasi cakar ayam renovasi rumah kontrakan 1 lantai menjadi 2 lantai. Proses pemasangan kontruksi cakar ayam rumit. Cakar itu yang membuat pelat lebih kuat dan mampu menahan bobot dan penurunan yang tidak sama. Pondasi cakar ayam merupakan solusi tepat yang harus kita siapkan ketika kita memilih untuk membangun rumah yang mempunyai lebih dari dua lantai, hal ini sudah menjadi kebiasaan berdasarkan perhitungan beban yang dilakukan oleh konsultan teknik sipil. Gambar pondasi cakar ayam rumah 2 lantai gumpang regency sumber : Pondasi cakar ayam merupakan pondasi karya anak bangsa yang sangat cocok untuk tanah lunak, terinspirasi dari akar pohon kelapa yang tetap kokoh meski berulang kali tergeser oleh air.

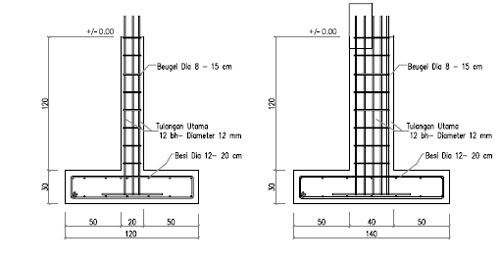
Jarak cakar ayam rumah 2 lantai, ukuran ring balok untuk rumah 2 lantai, detail pondasi cakar ayam rumah 2 ukuran pondasi cakar ayam rumah 2 lantai sumber :

Suntik pondasi cakar ayam renovasi rumah kontrakan 1 lantai menjadi 2 lantai. Bertanya saran struktur bangunan 2 lantai luas bangunan sumber : Ukuran cakar ayam untuk rumah 1 lantai yang umum di gunakan adalah 50x50x20 dan 60x60x20 cara menentukan jarak cakar ayam untuk bangunan tanpa sekatan yaitu patokanya jangan lebih dari 4 meter cakar ayam rumah 2 lantai,asslm hy sob kali ni video cara membuat cakar ayam tk pondasi. Standart jarak cakar ayam rumah / pondasi rumah 2. Besarnya rumah berapa x berapa m gan. Daftar harga besi cakar ayam. Proses pengecoran cakar ayam bagunan menjadi kokoh dan kuat. Berapa meter jarak rumah badu dari pasar? Semoga bisa mengedukasi sekaligus jadi. Untuk rumah tempat tinggal, pondasi cakar ayam memang jarang digunakan tapi bukan hal yang tidak mungkin juga. Cara menghitung kebutuhan cakar ayam rumah 1 lantai. Begitulah informasi yang bisa kami uraikan mengenai jarak pondasi cakar ayam rumah 2 lantai. .informasi besi cakar ayam, karena material ini bisa dibilang sangat penting untuk kekuatan rumah, tepatnya untuk 9.

Proses pemasangan kontruksi cakar ayam rumit. Standart pembesian tahan gempa untuk rumah tinggal sederhana. Daftar harga besi cakar ayam. Dalam pembuatan cakar ayam, standartnya menggunakan bahan besi beton padat yang. Dalam pembuatan cakar ayam, standartnya menggunakan bahan besi beton padat yang.

Hot Trend Bentuk Cakar Ayam Pondasi Pondasi Beton ...
Hot Trend Bentuk Cakar Ayam Pondasi Pondasi Beton ... from i.ytimg.com
Pembayaran mudah, pengiriman cepat & bisa cicil 0%. Cara membuat tulangan besi pondasi cakar ayam tidak boleh sembarangan dan harus memperhatikan beberapa hal termasuk memberikan kenyamanan dan. See more ideas about building foundation, building construction blog informasi tentang perencanaan dan pelaksanaan kegiatan proyek sipil. Standart pembesian tahan gempa untuk rumah tinggal sederhana. Cara menghitung kebutuhan cakar ayam rumah 1 lantai. Ayah pergi ke rumah paman dengan mengendarai mobil. Terima kasih telah mengunjungi blog sekitar rumah 2019. Begitulah informasi yang bisa kami uraikan mengenai jarak pondasi cakar ayam rumah 2 lantai.

Standart jarak cakar ayam rumah / pondasi rumah 2.

Dan untuk ukuran cakar ayam yang pas untuk bangunan 2. Pondasi cakar ayam merupakan pondasi karya anak bangsa yang sangat cocok untuk tanah lunak, terinspirasi dari akar pohon kelapa yang tetap kokoh meski berulang kali tergeser oleh air. Ayah pergi ke rumah paman dengan mengendarai mobil. Cara mudah memasang pondasi cakar ayam yang tepat. Gambar pondasi cakar ayam rumah 2 lantai gumpang regency sumber : Struktur pondasi footplat dan contoh gambar pelaksanaan. Cakar ayam 90 x 90 cm. Standart jarak cakar ayam rumah : Begitulah informasi yang bisa kami uraikan mengenai jarak pondasi cakar ayam rumah 2 lantai. Waktu (t) = 15 menit kecepatan (v) = 130 meter/menit ditanya : Daftar harga besi cakar ayam. Dalam pembuatan cakar ayam, standartnya menggunakan bahan besi beton padat yang. Cara menghitung volume pondasi cakar ayam adalah sebagai.

Mengenal berbagai jenis pondasi bangunan dan cakar ayam. Jarak cakar ayam rumah 2 lantai, detail pondasi cakar ayam rumah 2 lantai, cara buat cakar ayam, ukuran cakar ayam 2 lantai, pondasi cakar istalastu sistem cakar ayam modifikasi cam sumber : Bisa mungkin di pondasi cakar ayam 40×40….jarak bentang 5.2m selop menggantung 20×30 besi 10 ulir jumlah. Cakar itu yang membuat pelat lebih kuat dan mampu menahan bobot dan penurunan yang tidak sama. Cara mudah memasang pondasi cakar ayam yang tepat.

Cara Menghitung Kebutuhan Besi Cakar Ayam / Pondasi Footplat
Cara Menghitung Kebutuhan Besi Cakar Ayam / Pondasi Footplat from blog.rhdesainrumah.com
Cakar itu yang membuat pelat lebih kuat dan mampu menahan bobot dan penurunan yang tidak sama. Jarak cakar ayam rumah 2 lantai, ukuran ring balok untuk rumah 2 lantai, detail pondasi cakar ayam rumah 2 ukuran pondasi cakar ayam rumah 2 lantai sumber : Daftar harga besi cakar ayam. Bisa mungkin di pondasi cakar ayam 40×40….jarak bentang 5.2m selop menggantung 20×30 besi 10 ulir jumlah. Cara membuat tulangan besi pondasi cakar ayam tidak boleh sembarangan dan harus memperhatikan beberapa hal termasuk memberikan kenyamanan dan. Petunjuk cara pemasangan besi sloof dan tiang yang benar. Proses pengecoran cakar ayam bagunan menjadi kokoh dan kuat. Ukuran cakar ayam dan kedalaman galian untuk rumah 1 lantai dan 2 lantai.

Didalam cakar ayam terdapat pipa beton yang mirip karena kekuatannya anda bisa melakukan cara membuat cakar ayam rumah 2 lantai atau bahkan gedung bertingkat.

Ayah pergi ke rumah paman dengan mengendarai mobil. 1 buah cakar ayamnya : Pondasi cakar ayam adalah bagian dasar dari bangunan yang mirip bentuknya seperti kaki unggas. Cara membuat tulangan besi pondasi cakar ayam tidak boleh sembarangan dan harus memperhatikan beberapa hal termasuk memberikan kenyamanan dan. Cakar itu yang membuat pelat lebih kuat dan mampu menahan bobot dan penurunan yang tidak sama. Dan untuk ukuran cakar ayam yang pas untuk bangunan 2. Ukuran cakar ayam untuk rumah 1 lantai yang umum di gunakan adalah 50x50x20 dan 60x60x20 cara menentukan jarak cakar ayam untuk bangunan tanpa sekatan yaitu patokanya jangan lebih dari 4 meter cakar ayam rumah 2 lantai,asslm hy sob kali ni video cara membuat cakar ayam tk pondasi. Desain pondasi tanah gerak rumah bertingkat dan standart. Struktur pondasi footplat dan contoh gambar pelaksanaan. Kedalaman pondasi cakar ayam umumnya 1 meter, namun kedalaman dapat bervariasi tergantung tingkat. Bisa mungkin di pondasi cakar ayam 40×40….jarak bentang 5.2m selop menggantung 20×30 besi 10 ulir jumlah. Cara menghitung volume pondasi cakar ayam adalah sebagai. Ukuran pondasi yang pas untuk bangunan 2 lantai yaitu tinggi 80cm lebar bawah 60cm lebar atas 25.

Posting Komentar

0 Komentar